15 Lauvina Bye Rd, Geary E2V 3Y2 ,
Geary, NB E2V 3Y2
House

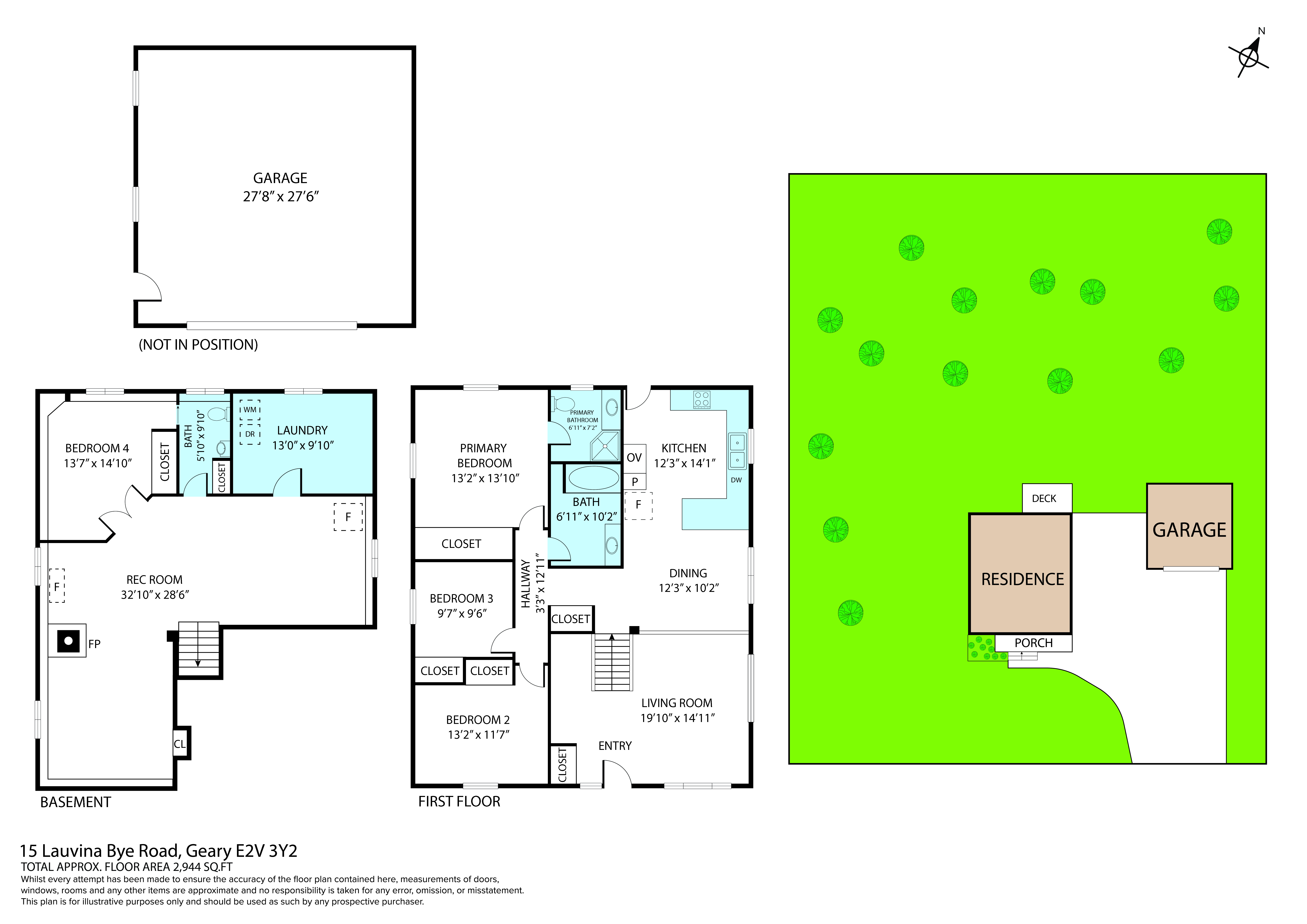
This spacious 4 bedroom, 3 bathroom (lower bath plumbed for shower) home boasts a unique layout that sets it apart from other homes in the area. The extra large deck is perfect for relaxing and entertaining guests, while the huge detached, insulated garage provides ample space for storing vehicles, equipment and tools. The treed-in backyard offers privacy and a serene atmosphere, perfect for outdoor enjoyment. Located in a country-like setting, this home is within walking distance to the local elementary school and convenience store, offering both convenience and a peaceful, rural lifestyle. With its spacious layout, large crawl space for storage, beautiful outdoor spaces, and convenient location, just 8 minutes to base, this home is sure to meet the needs of any family looking for a perfect blend of comfort and convenience.